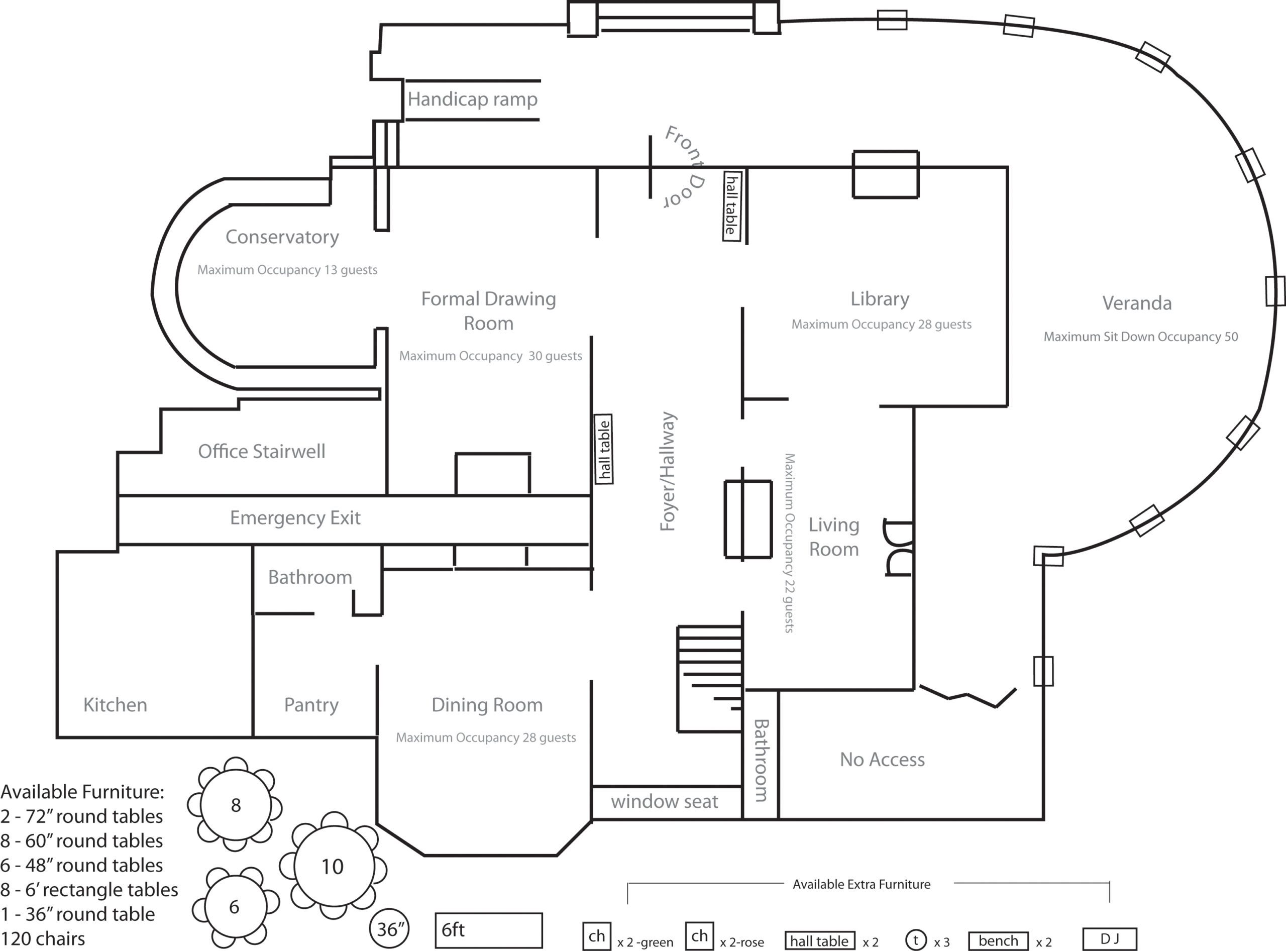
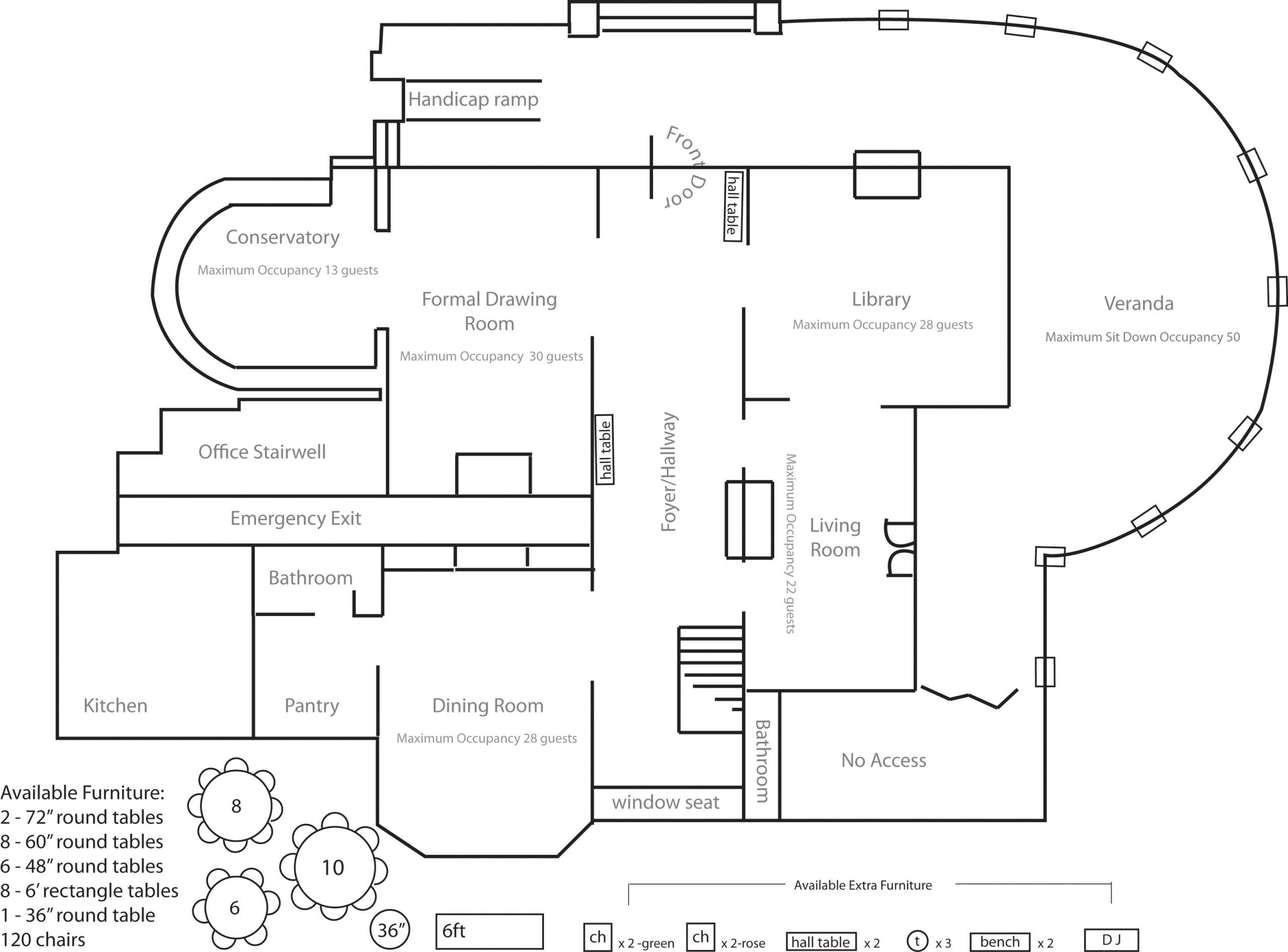
Floor Plans
The floor plans below are here to assist you in creating your seating chart so that you will know how many guests/tables each room can accommodate. Room capacities both in number of people allowed and the number of tables and chairs allowed are mandated by the City of Danbury Fire Department and adhere to a strict building/fire code.
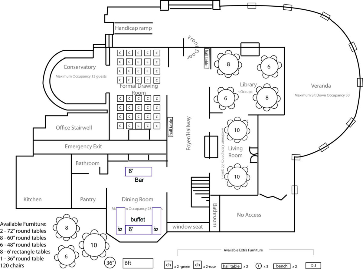
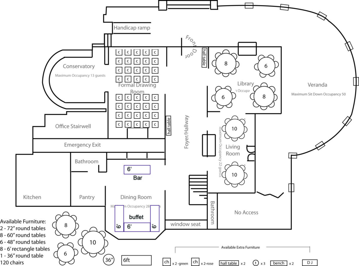
Below are just a few of many sample floor plans. Our staff has over 25 years of floor plan design and layout experience. To ensure guest comfort and fire & building code while incorporating your vision, please talk to us for floor plan ideas.
Floor Plan with Useful Measurements
Available Tables & Chairs
- 2 – 72″ round tables, seats 10
- 8 – 60″ round tables, seats 8
- 6 – 48″ round tables, seats 6
- 1 – 36″ round tables, seats 2
- 8 – 6′ rectangle tables
- 1 – 6 ‘x 18″- rectangle table
- 6 – high tops – 30″ round
- 120 – upholstered chairs
- 2 – green wingback chairs
- 2 – rose wingback chairs
- 2 – tapestry benches
- 3 – round end tables
Keep in mind that it is not only the number of guests per room that matters; it is the number and size of the tables as well. There is no guest seating allowed in the foyer due to fire egress.
The 4 sample floor plans below are just some of our most basic, Please talk with the staff to discuss your ideas and vision.
Conservatory
Conservatory: Total occupancy 13. Conservatory door must not be blocked.
Formal Drawing Room
Formal Drawing Room: Total occupancy 30.
Library
Library: Total occupancy 28.
Living Room
Living Room: Total occupancy 22. French doors must not be blocked.
Dining Room
Dining Room: Total occupancy 28.
Veranda
Veranda: Total occupancy 50 (tables & chairs). There is no guest seating allowed at the entrance to the veranda or past the chained off section near the French doors. The French doors must not be blocked. 100 chairs can be set up in the area for a wedding ceremony.






